Tomás Morales, Las Palmas de Gran Canaria

Agustín de Bethencourt 13-17

Nuestro tercer edificio está situado en Agustín de Bethencourt 13-17. Es un edificio de 4 plantas y 18 viviendas con garaje y trastero. La elección de sus materiales es el resultado del trato directo con los propietarios finales, que nos aportan sus experiencias y nos permite mejorar el diseño de nuestros edificios para hacerlos más comodos y practicos.

Agustín de Bethencourt 13-17 cuenta con toda la experiencia de nuestro equipo. La fachada con paneles de aluminio que le confiere personalidad a la serie; sus puertas y armarios a techo terminadas en chapa de madera natural con herrajes de alta calidad; sus baños con pavimento y paredes aplacadas en mármol natural; sus cocinas funcionales y completamente equipadas; el equipamiento de sus viviendas con todos los avances tecnológicos y la estudiada distribución de sus espacios. En resumen, diseño y comodidad.

Nuevo estilo de vida y nuevas necesidades. A las que damos respuesta con una cubierta con solárium y zona chil out; con sus amplios ventanales con los que disfrutar de la tranquilidad de la zona; con su amplio patio con abundante jardinería.

Economía razonable y comodidad. Un hogar cómodo a un precio muy razonable, y una oportunidad de inversión segura y de futuro. Muchos de nuestros clientes utilizan nuestras viviendas como una inversión altamente rentable.

El Interior

Viviendas funcionales y equipadas con un estilo limpio y moderno
  • Kitchen
  • Bathroom
  • Livingroom
  • Bedroom
  • Cocina totalmente equipada

    Con muebles altos y bajos y herrajes de alta calidad. Con encimera COMPAC. Con electrodomésticos que incluyen horno convencional, placa de inducción, campana extractora y lavadora y frigorífico integrado. Equipadas con bombas de calor para suministro de agua caliente sanitaría que permiten reducir el consumo de un termo convencional en un 75%.

    Materiales

    • Material Marble
    • Material Marble
    • Material Birch
  • Baño de alta gama

    Moderno y elegante. Con pavimento y paredes aplacadas en mármol natural. Con inodoro, lavabo encimera, columna de ducha y griferías marca ROCA.

    Materiales

    • Material Beton
    • Material Wall
    • Material Beton
  • Una "casa inteligente" con el mejor equipamiento

    Con instalación de fibra óptica y tomas de TV en el salón y en todos los dormitorios. Con un termo inteligente que detecta sus hábitos de consumo para adaptarse a ellos y ahorrar en su factura eléctrica. Con un video portero que le muestra la imagen de las visitas que ha recibido mientras estaba ausente. Con un pavimento porcelánico marca CIFER, modelo Caila Oak Mate. Con amplios ventanales de suelo a techo marca CORTIZO o similar, todos ellos con persiana y un foseado frontal para ocultar los estores o cortinas, con vidrios sistema Climalit y apertura oscilo batiente.

    Materiales

    • Material Marble
    • Material Marble
    • Material Wood
  • Diseño moderno también para su dormitorio y su carpintería

    Puertas de paso y armarios hasta el techo con base encapsulada en chapa de madera natural con herrajes de alta calidad. Los dormitorios principales se entregan equipados con armarios o vestidores, según vivienda.

    Materials

    • Material Marble
    • Material Birch
    • Material Wood
    • Material Wood

El Edificio

Arquitectura moderna luminosa y funcional
  • Kitchen
  • Bathroom
  • Livingroom
  • Bedroom
  • Fachada Principal

    Ventilada para mejorar el aislamiento térmico y acústico y la eficiencia energética del edificio, mediante paneles de aluminio en color gris antracita con remates en ventanas en los colores básicos.La fachada de planta baja revestida hasta media altura en piedra de Arucas y resto simulando hormigón visto.

    Materiales

    • Material Marble
    • Material Birch
  • Patio Central

    Un amplio patio central de 60 m2 al que se accede directamente desde el ascensor y proporciona gran luminosidad y ventilación a las viviendas. Con pasarelas abiertas al patio en hormigón con barandillas de acero y cristal.

    Materiales

    • Material Beton
    • Material Wall
  • Jardinería y eficiencia energética

    Tanto la cubierta como el patio del edificio contará con abundante jardinería, tanto en sus amplias jardineras con riego automatizado, como en sus grandes maceteros. La ventilación cruzada de muchas de las viviendas y la amplitud del patio permite la circulación del aire, lo que unido a su jardinería y a los aislamientos del edificio disminuye las necesidades de climatización de sus viviendas y aumenta la eficiencia energética del mismo.

    De esta forma, nuestro edificio cuenta con una alta CALIFICACION ENERGETICA (B 2,90 KgCO2/m2 año).

    Materiales

    • Material Marble
    • Material Wood
  • Cerramientos

    Exterior, mediante paneles de aluminio sobre una estructura de acero galvanizado fijada a bloque de hormigón de 20 cm, enfoscado y pintado al exterior y enlucido en yeso y pintado al interior. Entre viviendas, mediante doble tabique de bloque de hormigón de 9 cm con cámara de 6 cm y aislamiento con lana mineral, enlucido en yeso y pintado por ambas caras. En interiores, mediante tabique de bloque de hormigón de 9 cm enlucido en yeso y pintado por ambas caras. Techos mediante pacas de yeso laminado sobre estructura de acero galvanizado.

    Materiales

    • Material Marble
    • Material Birch

El Corazón de la Ciudad

Explore todas las posibilidades que ofrece su futuro hogar

Agustín Bethencourt 13-17

Nuestro edificio.

Jefatura superior de Policía de Canarias

Con sede en las Palmas de Gran Canaria, tiene como ámbito de actuación el territorio de la Comunidad Autónoma de Canarias. Las provincias que la componen son Las Palmas y Santa Cruz de Tenerife.

Parque Romano

El parque Romano de Las Palmas de Gran Canaria se ha convertido en pulmón deportivo de la ciudad, con más de 1.000 usuarios diarios. El Ayuntamiento ha querido «prestigiar esta zona y tecnificar el trabajo físico que ahí se realiza», con un cambio de look que va a convertir la zona en un auténtico gimnasio al aire libre.

Centro socio Sanitario El Pino

Perteneciente al Instituto de Atención Social y Sociosanitaria del Cabildo de Gran Canaria, alberga a 448 personas, atendidas por unos 240 trabajadores. Dispone de recursos de residencia y centro de día para personas con diferentes grados de dependencia.

Muelle Deportivo

Mientras disfruta del clima de Gran Canaria, el visitante puede alquilar un velero o recibir clases de buceo en el propio muelle deportivo con comodidades y servicios, pero también reponer fuerzas en cualquiera de los diferentes restaurantes que ofrecen deliciosas recetas junto a los pantalanes.

Delegación de Gobierno

Lorem ipsum dolor sit amet, consetetur sadipscing elitr, sed diam nonumy eirmod tempor invidunt ut labore et dolore magna aliquyam erat, sed diam voluptua.

Comandancia Militar de Marina

El Mando Naval de Canarias que ostenta la máxima autoridad de la Armada en el archipiélago. Máxima autoridad naval en las islas ostenta el mando de las unidades y la supervisión y control de todas las actividades de la Armada desarrolladas en el entorno geográfico de Canarias.

Campus Universitario

La ULPGC se sitúa en una región de indudable atractivo turístico, tanto por las bondades de su clima como por la belleza de sus variados paisajes, así como por contar con una gran herencia cultural y artística, al encontrarse situada en la encrucijada entre el Viejo y el Nuevo Mundo.

Edificio de usos Múltiples

El Edificio de Usos Múltiples está situado en la capital de Gran Canaria y en el tienen sede varios organismos del gobierno de canarias a parte de tener salones de actos para diversos eventos.

Cabildo Insular

El Cabildo Insular de Gran Canaria es el órgano de gobierno de la isla canaria. Como todos los cabildos, es una forma gubernativa y administrativa propia de las Islas Canarias, que además de las funciones de gobierno insular presta servicios y ejerce competencias propias de la Comunidad Autónoma canaria.
  • Agustín Bethencourt 13-17

    Nuestro edificio.

  • Jefatura superior de Policía de Canarias

    Con sede en las Palmas de Gran Canaria, tiene como ámbito de actuación el territorio de la Comunidad Autónoma de Canarias. Las provincias que la componen son Las Palmas y Santa Cruz de Tenerife.
  • Parque Romano

    El parque Romano de Las Palmas de Gran Canaria se ha convertido en pulmón deportivo de la ciudad, con más de 1.000 usuarios diarios. El Ayuntamiento ha querido «prestigiar esta zona y tecnificar el trabajo físico que ahí se realiza», con un cambio de look que va a convertir la zona en un auténtico gimnasio al aire libre.
  • Centro socio Sanitario El Pino

    Perteneciente al Instituto de Atención Social y Sociosanitaria del Cabildo de Gran Canaria, alberga a 448 personas, atendidas por unos 240 trabajadores. Dispone de recursos de residencia y centro de día para personas con diferentes grados de dependencia.
  • Muelle Deportivo

    Mientras disfruta del clima de Gran Canaria, el visitante puede alquilar un velero o recibir clases de buceo en el propio muelle deportivo con comodidades y servicios, pero también reponer fuerzas en cualquiera de los diferentes restaurantes que ofrecen deliciosas recetas junto a los pantalanes.
  • Delegación de Gobierno

    Lorem ipsum dolor sit amet, consetetur sadipscing elitr, sed diam nonumy eirmod tempor invidunt ut labore et dolore magna aliquyam erat, sed diam voluptua.
  • Comandancia Militar de Marina

    El Mando Naval de Canarias que ostenta la máxima autoridad de la Armada en el archipiélago. Máxima autoridad naval en las islas ostenta el mando de las unidades y la supervisión y control de todas las actividades de la Armada desarrolladas en el entorno geográfico de Canarias.
  • Campus Universitario

    La ULPGC se sitúa en una región de indudable atractivo turístico, tanto por las bondades de su clima como por la belleza de sus variados paisajes, así como por contar con una gran herencia cultural y artística, al encontrarse situada en la encrucijada entre el Viejo y el Nuevo Mundo.
  • Edificio de usos Múltiples

    El Edificio de Usos Múltiples está situado en la capital de Gran Canaria y en el tienen sede varios organismos del gobierno de canarias a parte de tener salones de actos para diversos eventos.
  • Cabildo Insular

    El Cabildo Insular de Gran Canaria es el órgano de gobierno de la isla canaria. Como todos los cabildos, es una forma gubernativa y administrativa propia de las Islas Canarias, que además de las funciones de gobierno insular presta servicios y ejerce competencias propias de la Comunidad Autónoma canaria.

Todo a un Paso

Podría pasar toda una vida personal y profesional sin salir de su barrio, simplemente paseando o en bicicleta.

Pero si lo necesita, su edificio está perfectamente conectado a través de la circunvalación y la Avenida Marítima con el resto de la Isla, y no se preocupe, disponemos de garaje para su vehículo.

Situación

El Corazón de la Ciudad

Situado en el barrio de Arenales, el Paseo de Tomas Morales es uno de los ejes que vertebran la ciudad y condensa un mayor numero de servicios. Flanqueado por dos grandes parques: San Telmo y el conjunto del parque Doramas y el Pueblo Canario. La fuente Luminosa, la Plaza de la Feria...

El campus Universitario, más de cinco institutos, la comandancia de Marina, la delegación del Gobierno Civil, la “súper comisaria” o jefatura superior de Policía de Canarias. La dirección provincial de la Seguridad Social, el centro socio Sanitario El Pino, los edificios de usos Múltiples, que aúnan un gran número de consejerías y servicios gubernamentales. La dirección general de Tráfico, la biblioteca pública y como no el Cabildo Insular de Gran Canaria, y así una larga lista de organismos y servicios públicos que se ubican en nuestro barrio.

Servicios

Supermercados, cafeterías, restaurantes de diferentes culturas, sucursales bancarias, incluyendo el Banco de España, oficinas de correo... Podríamos seguir durante horas con una larga lista de servicios, entidades y comercios que están a un paso de usted.

Disponibilidad

Veamos sus distribuciones y sus precios, y luego contáctenos de inmediato
ViviendaSuperficie construida zzccPrecio con garaje y trasteroContacto
A - 1 Dormitorio
-
B - 2 Dormitorio
64,92 m2

desde 275.686 €

Ver detalles
C - 2 Dormitorios
69,06 m2

desde 305.384 

Ver detalles
D - 2 Dormitorios
-
Ver detalles
E - 1 Dormitorios
-
F - 2 Dormitorios
-
Ver detalles

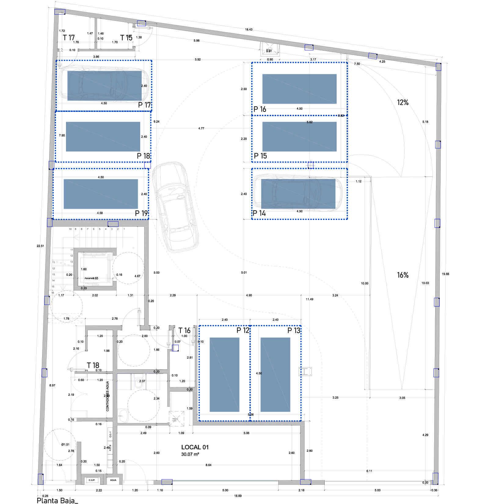
Planta Baja

Local comercial.Superficie construidaPrecioContacto
Local Comercial
34,48 m2

62.064€

!Hablemos¡
TipoSuperficie útilPrecioContacto
Garaje 12
-
Saber más
Garaje 13
10,80 m2

31.000 €

Saber más
Garaje 14
-
Garaje 15
9,90 m2

31.000 €

Saber más
Garaje 16
11,25 m2

31.000 €

Saber más
Garaje 17 + Trastero 17
-
Garaje 18
10,80 m2

31.000 €

Saber más
Garaje 19
10,80 m2

31.000 €

Saber más
Trastero 15
-
Trastero 16
-
Trastero 18
-

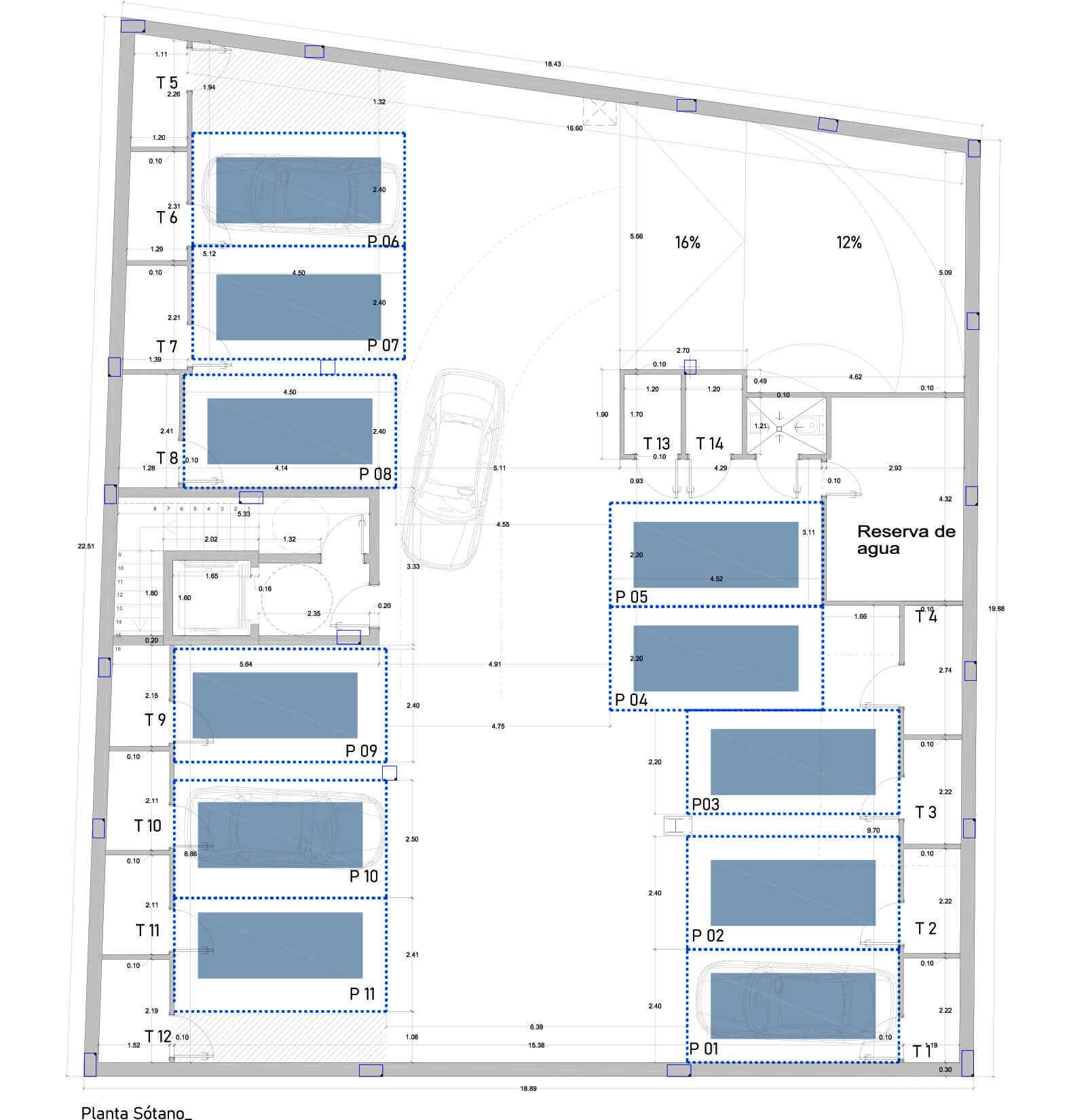
Sótano 1

TipoSuperficie útilPrecioContacto
Garaje 1 + Trastero 1
13,43 m2

34.000 €

Saber más
Garaje 2 + Trastero 2
-
Saber más
Garaje 3 + Trastero 3
12,61 m2

34.000 €

Saber más
Garaje 4 + Trastero 4
-
Saber más
Garaje 5
9,93 m2

31.000 €

Saber más
Garaje 6 + Trastero 6
-
Saber más
Garaje 7 + Trastero 7
-
Saber más
Garaje 8 + Trastero 8
Saber más
Garaje 9 + Trastero 9
-
Saber más
Garaje 10 + Trastero 10
-
Saber más
Garaje 11 + Trastero 11
-
Trastero 5
2,70 m2
4.000€
Trastero 12
-
Trastero 13
-
Trastero 14
-
Persona de Contacto
Juan Carlos Rodríguez
(+34) 650 443 144 - Esta dirección de correo electrónico está siendo protegida contra los robots de spam. Necesita tener JavaScript habilitado para poder verlo.

© Plenium Urbana.
Todos los derechos reservados.